Šumska 32, Nadalj, Srbija
3 комнаты·2 ванные·290 м²
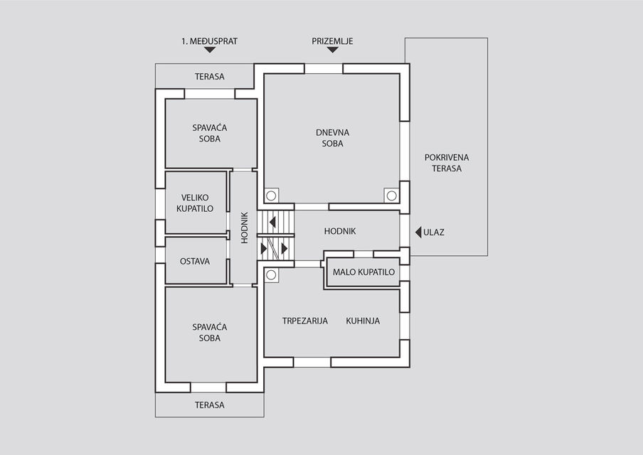
Площадь дома составляет 290 квадратных метров, из которых 160 квадратных метров — готовое жилое пространство, и столько же в стадии черновой отделки. Остальную площадь занимают подвал, гараж и котельная, а также имеется чердак. Стены и потолки утеплены. Во дворе имеется скважина глубиной 65 м, что обеспечивает автономность дома, экономию при поливе или наполнении бассейна.
Непосредственно рядом с этой недвижимостью владелец имеет ещё один участок — земля под застройку площадью 18x40 м. На нём в настоящее время находится большая теплица и небольшой виноградник для любительского виноделия. На участке есть электричество, подведённое подземным кабелем к теплице. Участок предоставляет возможности для пристройки различных объектов, если будущий владелец дома захочет расширить владение, поэтому участок также может быть предметом продажи.
Что мне нравится в этой недвижимости
Просторный, хорошо спланированный дом расположен в населённом пункте Надаль (община Србобран), тихая сельская атмосфера — идеальный выбор для тех, кто хочет уехать от городской суеты, но при этом не слишком далеко от города и других крупных населённых пунктов. Нови-Сад находится всего в 26 км, Бечей — в 15, Темерин — в 12, Србобран — в 10 км. Отопление центральное от газового котла, систему также можно обогревать от печи на дровах/угле или на брикетированной сое.Дом на продажу
€146.900
Цена за м²: €507
-
Основные факты
-
Тип
Дом - Участок
925 м² - Дней на Kaza.rs
61 день
- Год постройки
2000 - Количество этажей
5
-
- Сохранений
1
- Отопление
Радиаторы, Прочее -
Парковка
Гараж включён в стоимость
Личное парковочное место - Объявление просмотрено
39 раз
Информация
- Дом площадью 290,00 м²
- Пять этажей
- Участок от 925 м²
- Год постройки 2000.
- Недвижимость зарегистрирована
- Отдельная кухня
- Опубликовано 61 день
- Просмотров объявления: 39
- Цена за м²: €507
- ID объявления: 38367
Парковка
- Гараж включён в стоимость
- Личное парковочное место
- Радиаторы
- Прочее
Тип отопления
- Газ
- Дрова
- Уголь
- Прочее
Вид топлива для отопления
- Настенный кондиционер
Охлаждение
- 3 комнаты всего
- 2 спальни
- 2 ванные
- 5 террас
Дополнительная информация
- Доступно для инвалидов
- Подвал или чердак
- Лифт
- Кухонный гарнитур
История объекта
-
ДатаСобытиеЦена€/м²
-
5. март 20265. мар 2026Изменение цены€146.900+8,81%€507
-
29. январь 202629. янв 2026Объявление о продаже€135.000€466
-
2000Построено--
Интерес
39
Просмотров объявления
с момента публикации
с момента публикации
1
Добавлено в избранное
этот объект недвижимости
этот объект недвижимости
61
дней с момента публикации
этого объявления
этого объявления
Кредитный калькулятор
- Цена объекта
-
Первоначальный взнос
-
Срок кредита
30 лет- 10 лет
- 15 лет
- 20 лет
- 25 лет
- 30 лет
- Процентная ставка
В месяц
€522
Поблизости
-
-
Osnovna skola ,,Zarko Zrenjanin - Uca"
Svetog Save 31, Nadalj17 мин
1 км2 мин
1.3 км -
OS „Petar Drapsin”
Dositeja Obradovica 2, Turija99 мин
5.9 км6 мин
5.9 км -
Osnovna škola Svetozar Marković
Skolska 33, Backo Gradiste190 мин
11.3 км12 мин
11.7 км
Показать ещё школ
Показать меньше школ
Связаться владельца
-
- Отправить сообщение
-
-
Владелец желает остаться анонимным
-
Дом на продажу, Šumska 32, Nadalj, Srbija. Площадь 290m², 3 комнаты, 2 ванные, Площадь участка 925 m², построена в 2000. Цена: €146.900 (€507/m²).



















