Katićeva 36, Niš, Srbija
2 sobe·1 kupatilo·40 m²
Stan se nalazi na 1. spratu u zgradi koja ima suteren, prizemlje, 2 sprata i potkrovlje. Zgrada je sagrađena 2010. godine. Centralno grejanje. Kuhinja iz 2019. godine. 120 metara do najbliže trgovine As, 100 metara do najbližeg obdaništa Neven, 210 metara do najbliže osnovne škole Dositej Obradović.
Šta volim kod ove nekretnine
Strogi centar grada, pogled sa terase i miran kraj.Stan nije na tržištu
-
Brze činjenice
-
Tip
Stan - Sprat
1 / 4
- Godina izgradnje
2010 - Lift
Nema - Čuvanja
0
- Grejanje
Radijatori, Podno -
Parking
Nema informacija - Oglas pregledan
271 puta
-
-
Podaci o zgradi
Godina izgradnje 2010Broj etaža 4Lift NemaStambena zajednica ✓ RegistrovanaIzvor: Registar stambenih zajednica (RGZ)
-
Informacije
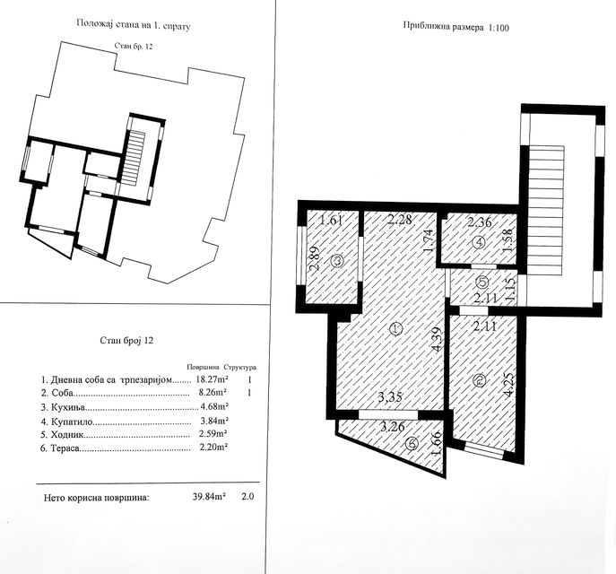
- Stan površine 40,00 m²
- 1. sprat sprat od ukupno 4
- Godina izgradnje 2010.
- Nekretnina je uknjižena
- Kuhinja nije u sklopu dnevne sobe
- Pregleda oglasa: 271
- ID Oglasa: 35761
Parking
- Nema informacija
- Radijatori
- Podno
Tip grejanja
- Nema informacija
Grejno gorivo
- Zidni klima uređaj
Hlađenje
-
- 2 sobe ukupno
- 1 spavaća
- 1 kupatilo
- 1 terasa
-
Dodatne informacije
- Pogodno za invalide
- Biciklana
- Podrum ili tavan
-
Istorija nekretnine
-
DatumDogađajCena€/m²
-
29. jul 202029. jul 2020Oglašeno za prodaju€45.000€1.125
-
2010Izgrađeno--
-
-
Interesovanje
271Pregleda oglasa
od objave -
U blizini
-
-
Osnovna škola „Dositej Obradović“
Kraljevića Marka 13a, Niš2 min
209 metara1 min
209 metara -
Osnovna škola "Učitelj Tasa"
Rajićeva 24, Niš7 min
556 metara3 min
992 metara -
OŠ "Kole Rašić" ⏰
Vase Čarapića 8b, Niš9 min
691 metara3 min
842 metara
Prikaži još školaPrikaži manje škola-
-
Park Čair
Niš15 min
1.2 km6 min
1.8 km -
Spomen park „Bubanj“
Niš35 min
2.4 km7 min
3.4 km -
Park Svetog Save
Niš37 min
2.9 km10 min
3.1 km
Prikaži još parkovaPrikaži manje parkova -
Kontaktiraj vlasnika
-
- Pošalji poruku
-
-
Goran +47 455 89 339
-















