Kej oslobođenja 13D, Donji Grad, Beograd, Srbija
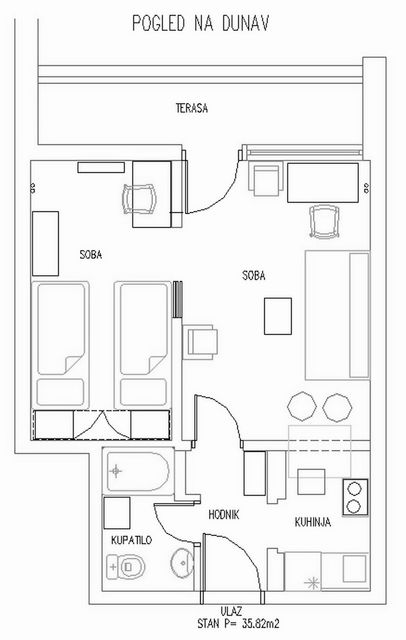
2 sobe·1 kupatilo·36 m²
Šta volim kod ove nekretnine
Pogled iz stana, lepa terasa, vrlo dobra organizacija stana.Stan nije na tržištu
-
Brze činjenice
-
Tip
Stan - Sprat
12 / 20
- Godina izgradnje
1976 - Lift
Ima
- Grejanje
Radijatori -
Hlađenje
Zidni klima uređaj
-
-
Informacije
- Stan površine 36,00 m²
- 12. sprat sprat od ukupno 20
- Godina izgradnje 1976.
- Kuhinja nije u sklopu dnevne sobe
- Pregleda oglasa: 193
- ID Oglasa: 36520
Parking
- Nema informacija
- Radijatori
Tip grejanja
- Gradsko centralno
Grejno gorivo
- Zidni klima uređaj
Hlađenje
-
- 2 sobe ukupno
- 1 spavaća
- 1 kupatilo
- 1 terasa
-
Dodatne informacije
- Pogodno za invalide
- Biciklana
- Podrum ili tavan
-
Istorija nekretnine
-
DatumDogađajCena€/m²
-
30. avgust 202030. avg 2020Oglas povučen€230€6
-
27. avgust 202027. avg 2020Oglašeno za izdavanje€230€6
-
1976Izgrađeno--
-
-
Interesovanje
193Pregleda oglasa
od objave -
U blizini
-
-
Osnovna škola „Svetozar Miletić”
Nemanjina 25, Beograd8 min
644 metara2 min
742 metara -
Osnovna škola „Majka Jugovića“
Gradski park 9, Beograd11 min
944 metara3 min
1 km -
Osnovna škola „Lazar Savatić“
Kej Oslobođenja 27, Beograd7 min
648 metara2 min
648 metara
Prikaži još školaPrikaži manje škola-
-
Zemunski park Kej
Zemun, Beograd6 min
495 metara3 min
795 metara -
Zemunski park
Zemun, Beograd12 min
1 km3 min
1.1 km -
Park Kalvarija
Beograd24 min
1.8 km7 min
2.5 km
Prikaži još parkovaPrikaži manje parkova -
Kontaktiraj vlasnika
-
- Pošalji poruku
-
-
Vlasnik želi da ostane anoniman
-










